Christelle model new houses | Perth Construction

New construction

Christelle

Surface area

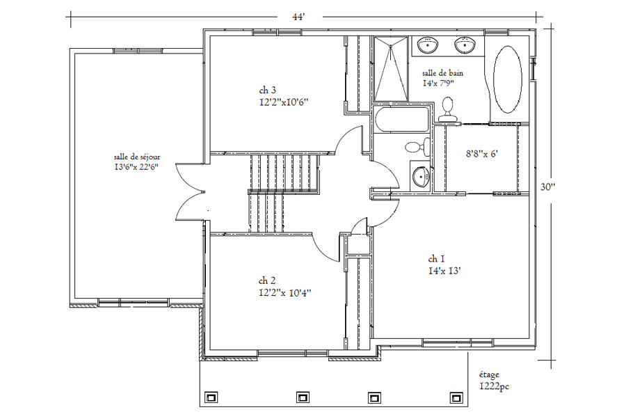
  • Ground floor 921 s.f.
  • First floor 1222 s.f.
  • Garage 336 s.f.

Construction
characteristics
PDF Link

Possibilities
are infinite!

There’s so much different possibility when it comes to building a new home. We present you different home models and styles, but keep in mind that these are propositions and that dimensions, divisions and extensions can be changed or manipulated to fit your needs. Submit us your requirements and expectations and we will provide you with the counseling and the design of your dream home.

More on new constructions

Suggested layout

plan to build Christelle model house plan to build Christelle model house

Alternative layout

plan to build Christelle model house
new house Christelle

ALSO AVAILABLE

Perth home builders

goeland

Perth home builders

hirondelle

Construction Perth inc. founded in 1998. This family business was built around a professional team meticulous craftsman, a team of designer and excellent and after market service. We accumulate multiple client word of mouth over the years. Construction Perth received the prestigious prize of the ‘Palme platine Maître Constructors’ for his work in residential buildings.

Website design and development by ESC Communication.