Modèle Mayte | Maison neuve | Construction Perth

Construction neuve

Mayté

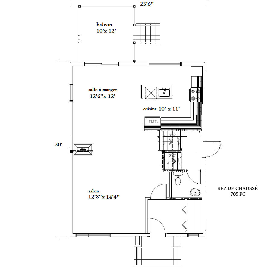
Superficie

  • Rez-de-chaussée 705 pi2
  • Étage 717 pi2

Caractéristiques
de construction
Lien PDF

Les possibilités
sont infinies!

Les possibilités sont infinies! Nous vous proposons plusieurs modèles de maisons avec des styles distinctifs. Ces plans et ces modèles de maisons sont des propositions, notre entreprise peut produire vos projets en se basant sur vos plans ou des plans existants et les adapter à vos besoins et à votre image. Soumettez vos dimensions, vos besoins particuliers et vos attentes et nous vous réaliserons la résidence de vos rêves.

Plus sur les constructions neuves

Aménagement Proposé

construction neuve mayte construction neuve mayte
construction neuve modele mayte

MODÈLES ÉGALEMENT DISPONIBLE

Construction Perth

christelle

Construction Perth

hirondelle

Construction Perth inc. a été fondé en 1998. Une compagnie familiale, entourée d’une équipe professionnelle qui se démarque d’un travail minutieux, d’un service de design et d’un excellent service après vente. Plusieurs de nos clients sont des références, du « Bouche à oreille. Avec le temps, Construction Perth à reçu le prix «Palme platine Maître Constructeur» pour l’ensemble de ces constructions résidentielles. Construction Perth inc. est là pour accomplir vos réalisations.

Site Web réalisé par ESC Communication.